2025.12.19
時の間の室内をご紹介します🔎
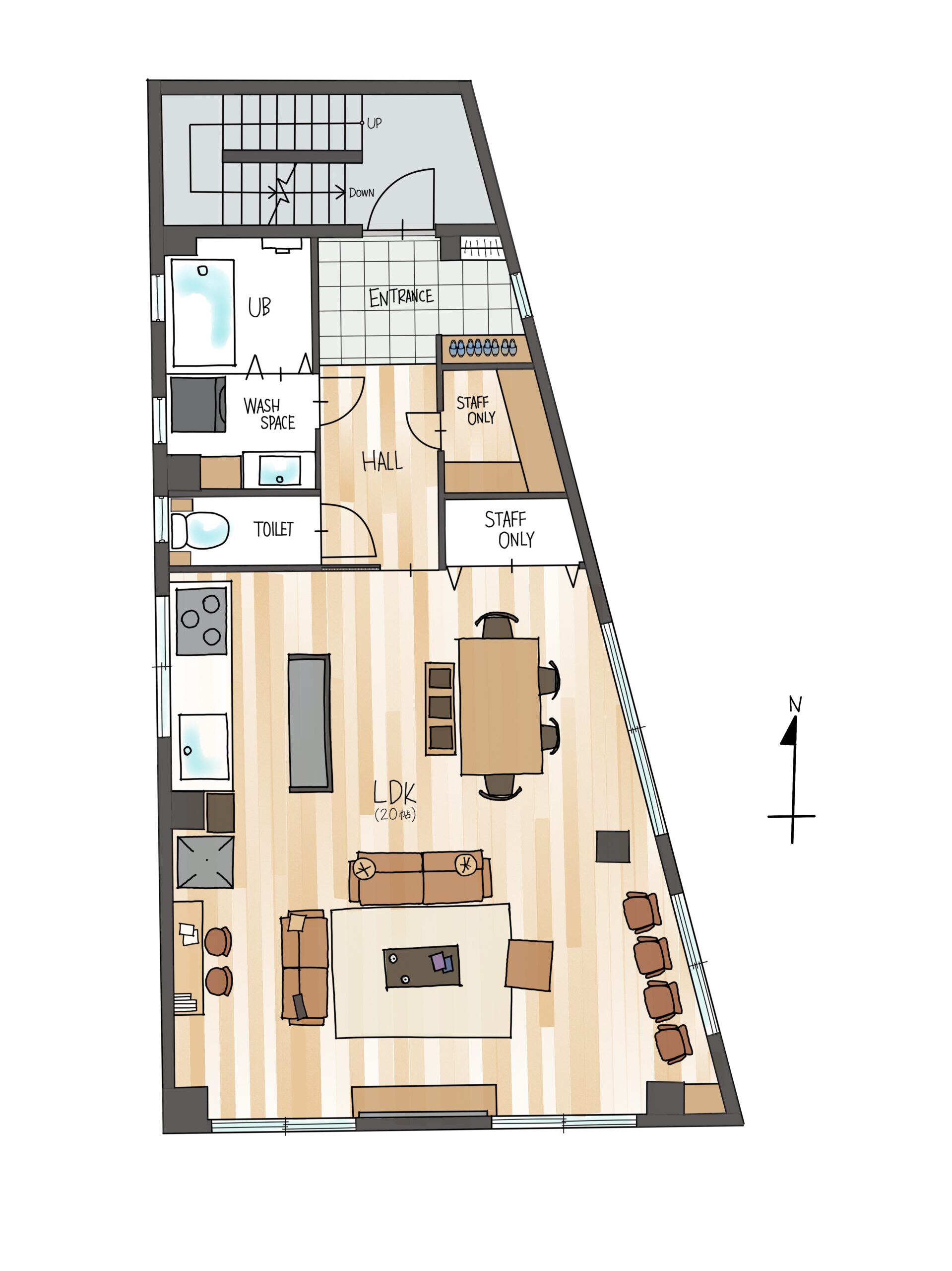
レンタルスペース時の間の、
間取り図ができあがりました🎉

改めて、ご覧ください~✨
時の間のインスタグラムにも投稿しています。


リビングダイニング合わせて、大人が定員20名でぴったりといった空間です。(着席ができます)
+お子さまが数名入れるくらいの広さがあるイメージとなります。
2023年12月にフルリノベーションしたので、室内とてもキレイです!
みんなで気兼ねなくワイワイと盛り上がる時間を、時の間で過ごしませんか?🤗
イベントや集まりの合間に、撮影もおしゃべりも楽しんでもらえたら嬉しいです。
✨屋上のあるレンタルスペース「時の間」
ぜひ素敵な時間をお過ごしください♪✨
レンタルスペース時の間 担当伊藤
048-919-2766
080-5097-0387
info@yathuka-f.co.jp
◯定休日:不定期
◯受付時間:9時〜19時
✨「時の間」ホームページより✨
✨ご予約承ります✨
URLはこちら▼
【公式】時の間 谷塚駅駅徒歩2分!屋内と屋上で楽しむ贅沢空間 屋上付の贅沢空間!20名迄OK|本格BBQ・大型パーティー・撮影 –
インスタベース、カシカシの利用料金は、税込み金額となります。
弊社に直接お申込み頂いた場合は税抜き金額にいたしますので、10%分お得になります!
どうぞお気軽にお問合せください。ご連絡お待ちしております♪




